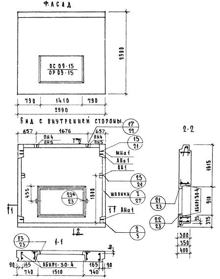
НР1-30.29.3-4-1

Чертеж изделия:
Чертеж НР1-30.29.3-4-1
Характеристики изделия:
ПараметрЗначение
Длина2990 мм
Ширина300 мм
Высота2900 мм
Масса2795 кг
Нормативный документСерия 1.132-1

НР1-30.29.3-4-1   Наружная стеновая панель рядовая по Серии 1.132-1.