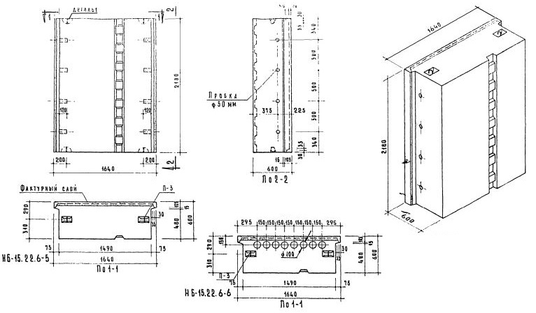
НБ-15.22.6-5

Чертеж изделия:
Чертеж НБ-15.22.6-5
Характеристики изделия:
ПараметрЗначение
Длина1640 мм
Ширина600 мм
Высота2180 мм
Масса3860 кг
Нормативный документСерия 1.133-1

Стеновые легкобетонные блоки толщиной 60 см по Серии 1.133-1.

НБ-15.22.6-5   Простеночный блок.